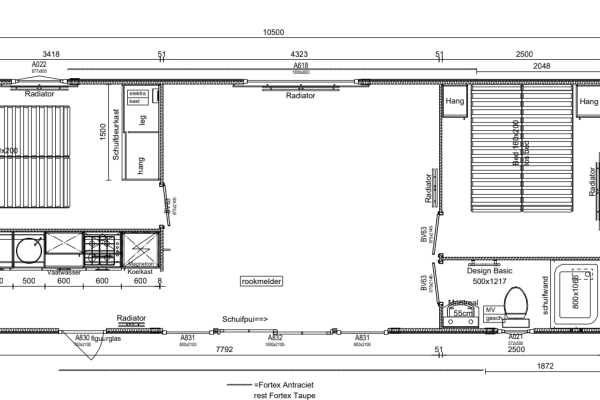
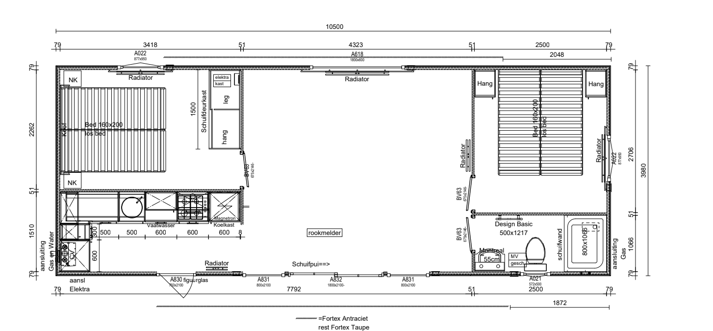
Dit Arcabo Kust chalet met lessenaarsdak is goed geïsoleerd, heeft dubbel glas en een centrale verwarming.
De woonkamer is voorzien van veel licht, een gezellige inrichting en een schuifpui naar het terras toe.
De open keuken is voorzien van alle gemakken, zoals een gasfornuis, afzuigkap, koelkast, vriezer en vaatwasser.
Er zijn twee slaapkamers met bedden en voldoende kastruimte.
De badkamer is voorzien van een douche, toilet en wastafel.
De tuinaanleg en een bijpassende berging zijn in de prijs inbegrepen en worden nog gerealiseerd.
Het park:
Camping Anna Friso ligt vlakbij het dorp Kamperland, op het eiland Noord- Beverland. Vanaf het park loop je zo de dijk over en geniet je op het strandje aan de Oosterschelde. Verderop ligt het 3 kilometer lange Banjaardstrand.
De camping is geopend van eind maart tot eind oktober. Commerciële verhuur is niet toegestaan. Huisdieren zijn welkom.
Haben Sie Fragen zu unseren Preisen, Optionen oder etwas anderem? Unser Team hilft Ihnen gerne weiter!
Ons magazine staat boordevol uitgelichte projecten, ervaringen van klanten en inspiratie voor jullie eigen droomchalet!