Arcabo kust met lesenaar Ginsterveld U16

Arcabo kust met lesenaar Ginsterveld U16
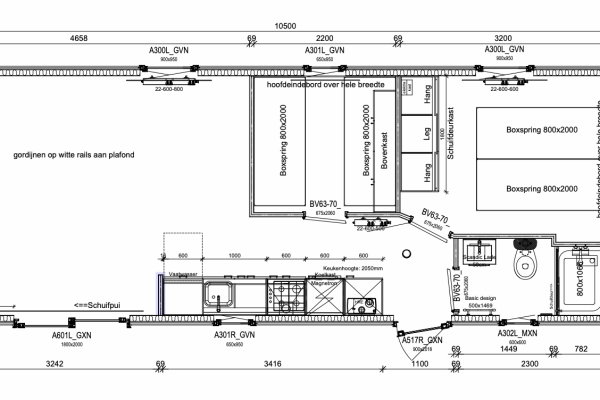
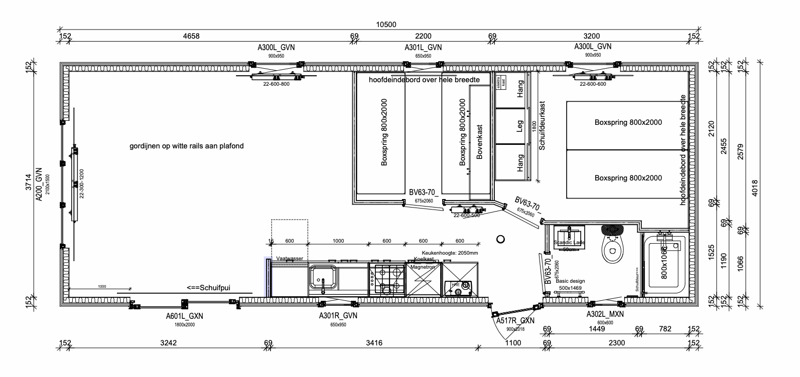
Plattegronden
Locatie
Maireweg 10, 4328 GR Burgh-Haamstede

Beschrijving

Dit stijlvolle Arcabo chalet (10.50 x 4.00) staat op het U-veld, welke het gehele jaar geopend is. In combinatie met de aanwezige centrale verwarming kun je er ook in de wintermaanden comfortabel verblijven.

Het moderne lessenaarsdak zorgt voor extra binnenhoogte en een ruimtelijk gevoel. De grote raampartijen laten het daglicht mooi binnenkomen.

De keuken is volledig uitgerust met een gaskookplaat, luxe oven, vaatwasser, combimagnetron en koel- vriescombinatie.

Er zijn twee slaapkamers, inclusief ingebouwde kledingkasten.
De badkamer beschikt over een douche, toilet, wastafelmeubel en een comfortabele handdoek radiator.

Het chalet wordt sleutelklaar opgeleverd. Er is een bijpassend tuinhuis geplaatst en de tuin wordt aangelegd in het voorjaar van 2026.

Je kunt direct genieten!

Het park:
Camping Ginsterveld is een gezellige familiecamping, midden in de natuur aan de rand van Burgh-Haamstede, vlakbij de vuurtoren en de uitgestrekte stranden en bossen van Schouwen-Duiveland.

De camping beschikt over diverse speeltuinen, een overdekt zwembad met whirlpool en Turks stoombad en een luxe buitenzwembad. In het restaurant kun je genieten van een lekkere maaltijd, of afhalen. In de minimarkt kun je terecht voor verse broodjes.
Commerciële verhuur is 42 dagen per seizoen toegestaan, honden zijn niet welkom op de camping.

* Interieur foto’s zijn ter inspiratie.
Lees meer

Specificaties

Vraagprijs:
€ 134.000,-
Afmetingen (L x B):
10.50 x 4.00 (m)
Slaapkamers:
2
Badkamers:
1
Apart toilet:
Nee
Bouwjaar:
2026
Kavelgrootte:
170 m²
Camping:
Camping Ginsterveld
Verwarming:
Centrale verwarming
Buitenbekleding:
Kunststof
Hond toegestaan:
Nee
Bekijk alle specificaties
Ontvang meer informatie:

Heb je vragen over onze prijzen, de mogelijkheden of iets anders? Ons team helpt je graag verder!

Annette (rond)
Deze site is beschermd door reCAPTCHA en Google Privacy Policy en Terms of Service zijn van toepassing.
Misschien ook interessant?
Deel deze pagina:
Email
WhatsApp
Facebook
Pinterest

Ontvang gratis het inspiratie magazine!

Ons magazine staat boordevol uitgelichte projecten, ervaringen van klanten en inspiratie voor jullie eigen droomchalet!

Deze site is beschermd door reCAPTCHA en Google Privacy Policy en Terms of Service zijn van toepassing.