Arcabo Kust met lesenaar

Arcabo Kust met lesenaar
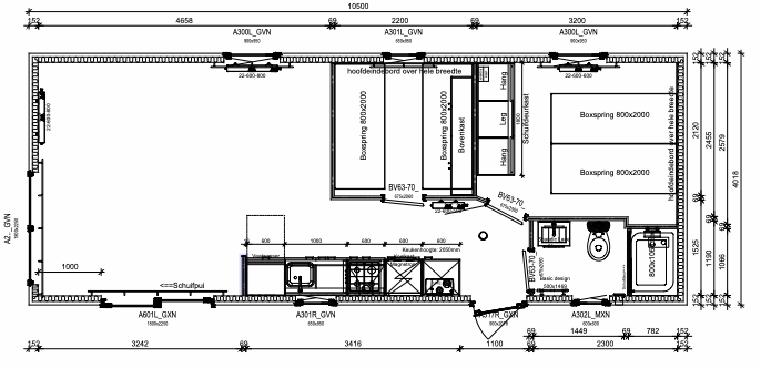
Plattegronden
Locatie
Elkerzeeseweg 45c, 4322 NA Scharendijke

Beschrijving

De Arcabo Kust met lessenaarsdak is een bijzonder chalet met een eigentijdse uitstraling. Het kenmerkende lessenaarsdak geeft het chalet een totaal andere look dan de standaard chalets. Met zijn riante afmetingen van 10,50 x 4,15 meter biedt het chalet een zeer ruimtelijk gevoel.

De masterbedroom beschikt over een grote schuifkast. De tweede slaapkamer is ingericht met twee eenpersoonsbedden. De strakke badkamer is voorzien van een douche met schuifdeur.

Daarnaast heeft het chalet twee grote raampartijen, waarvan één een schuifpui is die directe toegang biedt tot een eventueel terras.

Ben je enthousiast geworden over dit chalet? Neem dan contact met ons op via het aanvraagformulier of stuur een e-mail naar info@zeeuwsechalets.nl.

Lees meer

Specificaties

Vraagprijs:
*€ Prijs op aanvraag,-
Type:
Afmetingen (L x B):
10.50 x 4.15 (m)
Slaapkamers:
2
Badkamers:
1
Apart toilet:
Nee
Buitenbekleding:
Kunststof
Bekijk alle specificaties
Ontvang meer informatie:

Heb je vragen over onze prijzen, de mogelijkheden of iets anders? Ons team helpt je graag verder!

Annette (rond)
Deze site is beschermd door reCAPTCHA en Google Privacy Policy en Terms of Service zijn van toepassing.
Misschien ook interessant?
Deel deze pagina:
Email
WhatsApp
Facebook
Pinterest

Ontvang gratis het inspiratie magazine!

Ons magazine staat boordevol uitgelichte projecten, ervaringen van klanten en inspiratie voor jullie eigen droomchalet!

Deze site is beschermd door reCAPTCHA en Google Privacy Policy en Terms of Service zijn van toepassing.