IRM Mimosa

IRM Mimosa
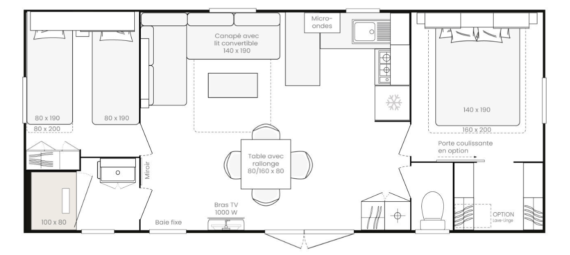
Plattegronden
Locatie
Elkerzeeseweg 45c, 4322 NA Scharendijke

Beschrijving

De IRM Mimosa is een sfeervol chalet met een praktische en prettige indeling. De woonkamer bevindt zich centraal in het chalet en vormt het hart van de leefruimte. Dankzij de grote ramen valt er veel natuurlijk licht binnen, wat zorgt voor een open en gezellige sfeer. De opvallende blauwe keuken sluit hier mooi op aan en geeft het chalet een eigentijdse en karaktervolle uitstraling.

Het chalet beschikt over een comfortabele master bedroom met een praktische inloopkast. Daarnaast is er een tweede slaapkamer met twee eenpersoonsbedden. De moderne badkamer is voorzien van een douche en er is een apart toilet aanwezig, wat extra comfort biedt.

Met zijn afmetingen van 8,85 x 4,00 meter is de IRM Mimosa een compact maar compleet chalet, zeer geschikt voor ontspannen verblijven.

Ben je enthousiast geworden over dit chalet? Neem dan contact met ons op via het aanvraagformulier of stuur een e-mail naar info@zeeuwsechalets.nl.

Lees meer

Specificaties

Vraagprijs:
*€ Prijs op aanvraag,-
Type:
Afmetingen (L x B):
8.85 x 4.00 (m)
Slaapkamers:
2
Badkamers:
1
Apart toilet:
Ja
Buitenbekleding:
Kunststof
Bekijk alle specificaties
Ontvang meer informatie:

Heb je vragen over onze prijzen, de mogelijkheden of iets anders? Ons team helpt je graag verder!

Annette (rond)
Deze site is beschermd door reCAPTCHA en Google Privacy Policy en Terms of Service zijn van toepassing.
Misschien ook interessant?
Deel deze pagina:
Email
WhatsApp
Facebook
Pinterest

Ontvang gratis het inspiratie magazine!

Ons magazine staat boordevol uitgelichte projecten, ervaringen van klanten en inspiratie voor jullie eigen droomchalet!

Deze site is beschermd door reCAPTCHA en Google Privacy Policy en Terms of Service zijn van toepassing.